Search

Leave a Message

Thank you for your message. We will be in touch with you shortly.

Explore Our Properties

Property Description

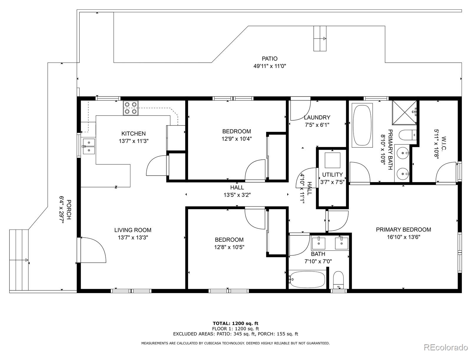
Spectacular remodel...this is the one! This fully-permitted renovation is new from top to bottom (and zoned for an ADU!). Upon entry, the open floor plan is ideal for entertaining. The primary suite is massive and offers a large walk-in closet and gorgeous 5-piece bathroom with freestanding bathtub. Two other large bedrooms offer space for family or office needs and the secondary full bathroom is tastefully appointed. A large laundry area and mudroom provides access to the fully fenced and private backyard. And the two-car garage offers ample room for vehicles, gear, or whatever need arises. Centrally located with easy access to Downtown, 6th Ave to the mountains, or anywhere in the city. Impeccable workmanship, quality finishes - welcome to your brand new home! New sprinkler system front and rear. And, when the sewer line was replaced, it was extended to the backyard and already in place for a future ADU!

Overview

Property Status
Sold
Lot Size
6,650 Sq.Ft.
MLS ID
5615611
Property Type
Residential
Year Built
1943

Features & Amenities

Total Area
1,344 Sq.Ft.
Architecture Styles
Traditional
Stories
1
Garage Spaces
2.0
Water Source
Public
Roof
Composition
Heat Type
Forced Air, Natural Gas
Air Conditioning
Central Air
Appliances
Dishwasher, Disposal, Microwave, Oven, Range, Refrigerator
Other Interior Features
Eat-in Kitchen, Five Piece Bath, No Stairs, Open Floorplan, Primary Suite, Quartz Counters, Smoke Free
Sewer
Public Sewer
Other Exterior Features
Private Yard
Elementary School
Munroe
Middle School
Strive Westwood
High School
West
School District
Denver 1
Sales Price
$565,000
Real Estate Tax
$1,404/yr
Zoning
E-SU-D1X

Downloads

3402 W Center Avenue

Schedule a Tour

We would love to help you see this beautiful home! As a full-service brokerage, we can help you tour. Please submit an offer, and answer questions about the buying process.

Enter a valid email

Thank you

for your interest in 3402 W Center Avenue, Denver, CO 80219

back to page
3402 W Center Avenue
Navigate
3402 W Center Avenue
explore in 3d

I'm Interested In

3402 W Center Avenue

or
  • CallLuke Corbitt

    License #100053075

    (303) 949-8104
  • Follow Us On Instagram